
13 листопада 2024, 13:46
13 листопада 2024, 13:46
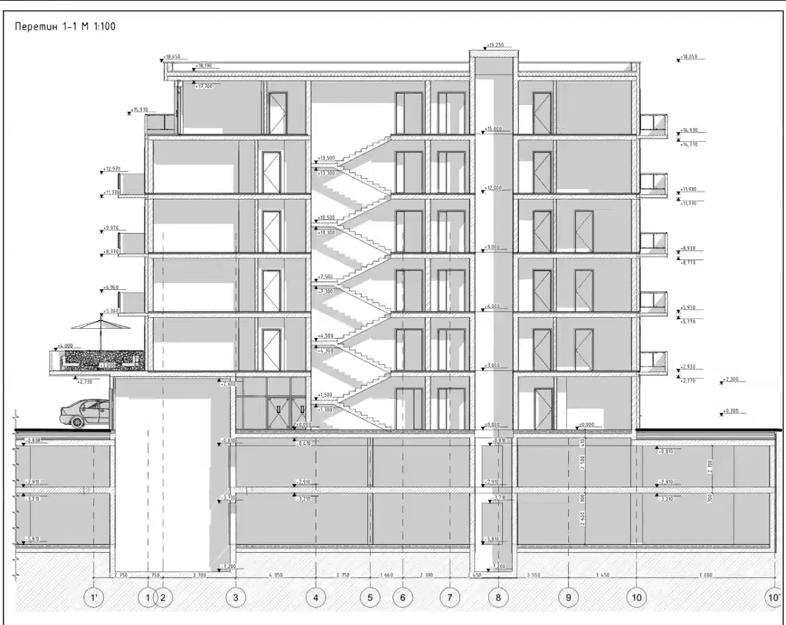
У Львові планують збудувати багатоквартирний житловий будинок з підземним паркінгом на вулиці Земельній, 3. Намір видати містобудівні умови та обмеження озвучили в управлінні архітектури під час засідання виконавчого комітету Львівської міськради 12 листопада, інформує «Твоє місто».
Читайте також: В Личаківському районі Львова знесуть споруди й збудують житло. Раніше в проєкті мав бути артоб'єкт

Вул. Земельна / google maps
«Цей об’єкт успішно пройшов містобудівну раду після коригування. В будинку буде 23 квартири та 18 паркомісць, що відповідає коефіцієнту 0,8 для житлової забудови у Львові».
Читайте також: В районі Мотозаводу у Львові зведуть адмінбудівлю


Зазначимо, що поруч вже є п’ятиповерховий будинок, також планується будівництво багатоквартирного житлового будинку, що запроектовано іншим проєктом, і на перспективу – проєктована громадська будівля.
Також поруч є дитмайданчик, майданчик для паркування велосипедів та існуючий садибний житловий будинок.

Нагадаємо, що у Львові планують звести багатофункційний будинок з підземним паркінгом, споруди, які там є, мають знести. Будівництво планується на вулиці Тракт Глинянський, 141-Б, в Личаківському районі. Будинок планують збудувати на 6 поверхів, а гранична висота будівлі становить 24,7 м.
Візуалізація з виконкому ЛМР
Щоб отримувати актуальні й гарячі новини Львова та України, підписуйтеся на наш Instagram та Viber.
Трансляції важливих подій наживо і щотижневі відеопрограми – про актуальні львівські питання у «Темі тижня» та інтелектуальні розмови на загальноукраїнські теми у «Акцентах Твого міста» і публічні дискусії для спільного пошуку кращих рішень викликам громади міста – дивіться на нашому YouTube-каналі.
Коментарі
Поки що немає коментарів. Будьте першим, хто залишить свій відгук!
Читайте також
Контент
Рубрики
Розроблено:
Levprograming
За умови повного або часткового використання iнформацiї гіперпосилання на tvoemisto.tv є обов'язковим. Відповідальність за достовірність фактів, цитат, власних імен та інших відомостей несуть автори публікацій, а рекламної інформації — рекламодавці. Думка редакцiї може не збiгатися з думкою авторiв.
© 2026 "Твоє місто"




