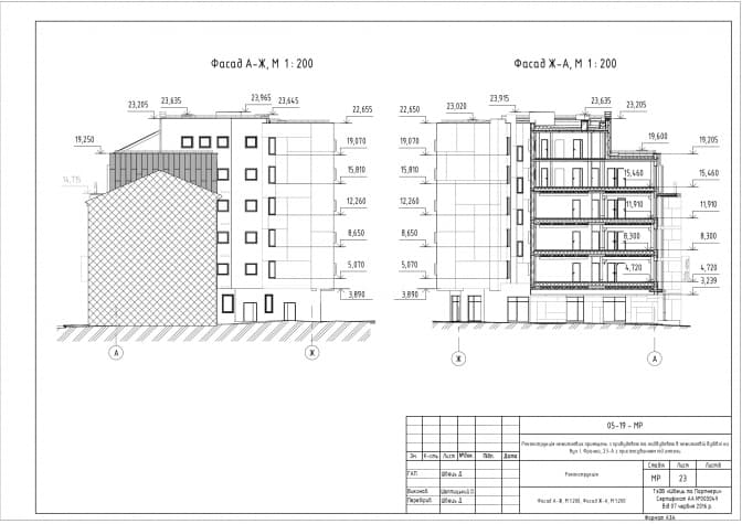
У центрі Львова ще одну будівлю перебудують у готель. Відповідні містобудівні умови і обмеження для перебудови нежитлового приміщення на вулиці на вул. І. Франка, 23-А у Львові погодив виконком 12 березня.


Готель будуватиме товариство з обмеженою відповідальністю «Чародійка Холдинг». Міський голова запропонував зберегти «історичну» цінність цього будинку, і залишити у ньому місце для перукарні, яка працювала там раніше.
Гранично допустима висотність споруди не має перевищувати 22,8 метра.

Додамо, що за інформацією аналітичної системи YouControl, «Чародійка Холдинг» зареєстроване у 2017 році. Власником є Маркус Саммер, із реєстрацією у Ліхтенштейні. 90% компанії належить АЙ.ЕС.ВОРЛДВАЙД МЕНЕДЖМЕНТ ЛТД, компанія зареєстрована на Кіпрі. Серед засновників компанії вказане також акціонерне товариство «Закритий недиверсифікований венчурний корпоративний інвестиційний фонд «Камет».
Вікторя Савіцька





