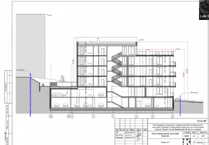
У Львові на вул. Бойківській планують знести наявну там будівлю та спорудити 4-поверховий будинок з вбудованим паркінгом. Відповідні містобудівні умови та обмеження затвердив виконком ЛМР на засіданні 23 січня.
Йдеться про земельну ділянку загальною площею близько 0,15 га на вул. Бойківській, 28/28а. За словами головного архітектора Львова Антона Коломєйцева, забудовник планує звести 4-поверховий будинок із загальною кількістю квартир – 21, а також з підземним паркінгом на 20-22 місця. Гранична висота будинку не повинна перевищувати 18 м.
Читайте також: Може стати новим центром Львова. Як розвивається Підзамче


Містобудівні умови та обмеження отримала компанія ТОВ «Резерв Плюс». За даними YouControl, вона належить до групи компаній «Інтергал-буд», а також є замовником будівництва ЖК Mill Town на вулиці Лемківській у Львові.
Нагадаємо, у Львові планують збудувати заклад громадського харчування із коворкінгом на вулиці Стрийській.
Антоніна Костик
Щоб отримувати актуальні й гарячі новини Львова та України, підписуйтеся на наш Instagram та Viber.
Трансляції важливих подій наживо і щотижневі відеопрограми – про актуальні львівські питання у «Темі тижня» та інтелектуальні розмови на загальноукраїнські теми у «Акцентах Твого міста» і публічні дискусії для спільного пошуку кращих рішень викликам громади міста – дивіться на нашому YouTube-каналі.





