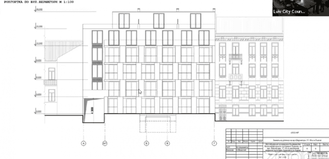
На вулиці Вернигори, 17-19, що у Залізничному районі Львова, знесуть наявні будівлі та збудують багатоквартирний житловий будинок із підземним паркінгом. Відповідне рішення про затвердження містобудівних умов та обмежень погодили 3 лютого на засіданні виконавчого комітету ЛМР.

Забудовник планує звести 6-поверховий будинок із загальною кількістю квартир – 25, а також з підземним паркінгом на 28 місць. Гранична висота будинку не повинна перевищувати 18 м. За словами архітектора проєкту Миколи Шеремети, на розі вулиці Декарта-Вернигора також облаштують дитячий майданчик.

Нагадаємо, на вулиці Морозна, що у Сихівському районі Львова, збудують житловий комплекс із приміщеннями громадського призначення та підземним паркінгом.
Антоніна Костик
Щоб отримувати актуальні й гарячі новини Львова та України, підписуйтеся на наш Instagram та Viber.
Трансляції важливих подій наживо і щотижневі відеопрограми – про актуальні львівські питання у «Темі тижня» та інтелектуальні розмови на загальноукраїнські теми у «Акцентах Твого міста» і публічні дискусії для спільного пошуку кращих рішень викликам громади міста – дивіться на нашому YouTube-каналі.





