У Львові з другої спроби намагаються відремонтувати площу Галицьку, де торік під час підготовчих робіт розкопали храм XVI століття. Тепер же архіологічні знахідки вирішили законсервувати й з другої спроби облаштувати тут фонтан. Архітекторка, яка виготовляла проєкт реконструкції площі, Ольга Криворучко розповідає, як зміниться площа та чому залишки храму не покажуть туристам.
Після минулорічних обговорень і враховуючи рекомендації дорадчої ради, що відбулася наприкінці минулого року, вирішили, що фонтан на площі Галицькій може залишитися, так як це об’єкт був присутнім у цьому просторі щонайменше 140 років (незалежно від зміни влади), а ще раніше тут була криниця, тобто вода не є чужою в цьому місці. Фонтан на площі є звичним і пам’ятним для мешканців міста і формує атрактивний громадський простір.
Костел Воздвиження Чесного Хреста датується ХVІ ст. Його розібрали в часи Австро-Угорщини. Під час минулорічних археологічних розкопок археологи дослідили його фундаменти. В проєкті реконструкції площі запропонували відтрасувати конфігурацію фундаментів типом мощення, відмінним від основного типу мощення площі. Частина фундаментів ховається під колишнім будинком Крайового суду, сьогодні – корпус «Львівської політехніки», що його збудували на місці розібраного костелу. Тож відтрасують лише той фрагмент, що є під площею Галицькою. Також проєктом передбачене трасування огорожі, що була навколо костелу, фундаменту, на якому стояла фігура. Усі типи мощення підібрали максимально подібно до автентичних матеріалів.

Фундаменти костелу законсервовані, додатково будуть захищені пінополістиролом (до цього вони були накриті геотекстилем). Їх не забетоновують, а засипають пісково-гравійною сумішшю. Контури фундаменту протрасують на поверхні іншим типом мощення, поряд встановлять макет костелу.
Також у проєкті передбачені невеличкі таблички, що монтуються в мощення трасування і несуть інформацію, про це мощення.
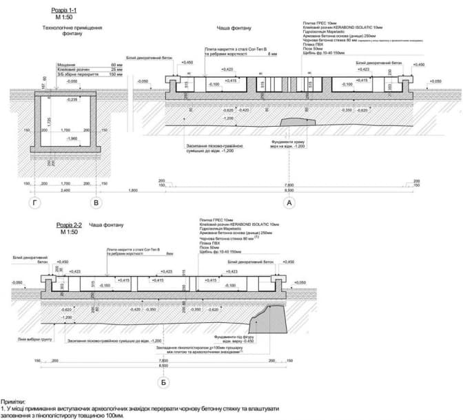
Через вияалені фундаменти костелу Воздвиження Чесного Хреста, місцерозташування проєктованого фонтану змістилося відносно розташування старого фонтану, а також габарит чаші зменшився. Технологічне приміщення (прямокутне в плані), яке сьогодні можна побачити в опалубці, розташовують збоку, на відстані 3 м від фундаментів костелу.

Запроєктований фонтан піднімається відносно пішодіної поверхні площі на 450 мм. По його контуру можна буде сидіти. Низ чаші фонтану заглиблюється в землю на 350 мм від рівня пішохідної поверхні площі (відмітка низу чаші), далі –основа з сипучих матеріалів (гравій, пісок) для засипання і вирівнювання основи до верху залягання археологічних знахідок, відмітки яких різні.
У місці, де буде бетонна основа фонтану, відстань від низу основи до верху виступаючих фундаментів нартексу костелу від 850 мм і більше. Цей проміжок заповнюють гравієм та піском.

Найбільш виступаючою ділянкою є фундамент прямокутної форми, який, імовірно, був фундаментом під фігуру. В цьому місці відстань від цього фундаменту до низу чаші проектованого фонтану становить 200 мм. Цей проміжок засипають гравієм та піском. Крім того, виступаючі елементи археологічних знахідок додатково накриють пінополістиролом. Завдяки цьому в майбутньому на площі можна буде проводити археологічні дослідження.
Зараз на будмайданчику є розмічений контур, за яким основу засипають піском, але це не контур чаші фонтану. Тільки після виконання всіх шарів основи підрядник повинен винести розміри чаші в натуру та погодити їх з архітектурним і археологічним наглядом.

Також за проєктом на площі знесуть кіоски, облаштують нове освітлення і встановлять вуличні меблі. Під час другої черги робіт площу озеленять.
І це лише деякі аспекти проєкту. Він не простий і низка обговорень вже позаду, але все ще виникають нові думки й побажання. Багато які питання можна з'ясувати, просто спитавши. Але в нас так не заведено вести дискусію. Оглянути проект можна в Галицькій райадміністрації та на майданчику.
Авторська колонка є відображенням суб’єктивної позиції автора. Редакція «Твого міста» не завжди поділяє думки, висловлені в колонках, та готова надати незгодним можливість аргументованої відповіді.
Повна або часткова републікація тексту без письмової згоди редакції забороняється і вважається порушенням авторських прав.
Щодня наша команда працює над тим, щоб інформувати Вас про найважливіше в місті та області. За роки своєї праці ми довели, що «Твоє місто» – це медіа, якому справді можна довіряти.
Якщо Вам подобається те, що ми робимо – долучайтеся до Спільноти Прихильників «Твого міста» та збережіть незалежне медіа для громади. Кожен внесок має значення!
Що отримають члени спільноти Tvoemisto.tv:
- ексклюзивні e-mail розсилки
- доступ на спеціальні закриті події для Спільноти
- можливість голосувати за теми матеріалів та публічних дискусій, які планує редакція
- можливість стати експертом «Твого Міста»
- ексклюзивне друковане видання з доставкою додому/в офіс (щодвамісяці)
- у майбутньому – знижки у мережі партнерів «Твого Міста».
Підтримати Tvoemisto.tv можна за посиланням.





