
05 травня 2023, 12:57
05 травня 2023, 12:57
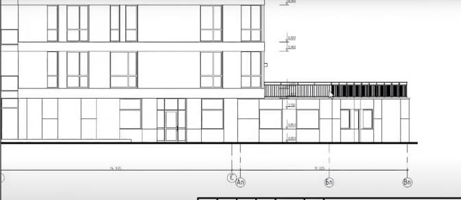
У Львові планують звести шестиповерховий житловий будинок з підземним паркінгом та стилобатом на вул. Кульпарківській, 190. Відповідний містобудівноий розрахунок з техніко-економічними показниками нового будівництва підтримали на засіданні архітектурно-містобудівної ради Львова 4 травня.
Будинок розташований у Залізничному районі біля кільця на розі вулиць Кульпарківська і Виговського. Поряд є багатоквартирні житлові будинки.
Йдеться про ділянку в зоні Ж3, де поверховість передбачена від шести поверхів, але на цій ділянці, де була розташована радянська і дорадянська забудова, пропонують мінімальну поверховість. Перший поверх – комерційний.

Зазначимо, що при проєктуванні початкового детального плану з’ясувалось, що геологія не дозволяє там розмістити дворівневий паркінг, як планувалось. Адже на 8-9 метрів залягають гіпси, які при розмоканні можуть утворювати карсти і втрачати структуру.
Тому вирішили зробити підземний одноповерховаий паркінг та розташувати стилобат на першому поверсі будинку для того, щоб облаштувати необхідну кількість паркомісць на першому поверсі. Стилобат – це спільний цоколь, що з'єднує одразу кілька будівель. Він може розташовуватися на землі або над її поверхнею за допомогою опор.
Перший поверх буде майже повністю зайнятий паркінгом, лише невелика частина залишиться для житлової функції. Загалом на підземному паркінгу та стилобаті розмістять 32 паркомісця для 42 квартир.

«Ми просимо внести зміни у відсоток забудови, під будинком так і залишиться 40%. Висота будинку буде 22 метри. Ми просимо дати цій добудові максимум 70%», – пояснює під час засідання містобудівної ради головний архітектор проєкту Тарас Мартинюк.
Читайте також: На Підзамчі пропонують збудувати новий житловий квартал з елітними квартирами
Виступаюча стилобатна частина буде використовуватися для реакреації та відпочинку.


Водночас передбачається реновація існуючого дитячого майданчику. Є договір з міською радою, що замовник забезпечить його реконструкцію.
«Такі стилобати – це дуже небезпечна робота з точки зору якості результату. Тут необхідна максимальна обережність з архітектурним рішенням, озелененням тераси та виходом на неї. Одна справа, коли є ландшафт, а зовсім інша, коли з’явилася тераса», – каже під час засідання головний архітектор Львова Антон Коломєйцев.

Нагадаємо, що що містобудівні умови та обмеження погодили підприємству «Об'єднання співвласників багатоквартирного будинку Кульпарківська 190» ще влітку 2022 року, однак при проєктуванні початкового детального плану з’ясувалось, що у проєкт потрібно внести зміни. Компанія, за даними аналітичної системи Youcontrol, зареєстрована минулого року на однойменній вулиці. Керівником організації є Юрій Баран.
Наталія Вареник
Візуалізація з засідання архітектурно-містобудівної ради
Щоб отримувати актуальні й гарячі новини Львова та України, підписуйтеся на наш Instagram та Viber.
Трансляції важливих подій наживо і щотижневі відеопрограми – про актуальні львівські питання у «Темі тижня» та інтелектуальні розмови на загальноукраїнські теми у «Акцентах Твого міста» і публічні дискусії для спільного пошуку кращих рішень викликам громади міста – дивіться на нашому YouTube-каналі.
Коментарі
Поки що немає коментарів. Будьте першим, хто залишить свій відгук!
Читайте також
Контент
Рубрики
Розроблено:
Levprograming
За умови повного або часткового використання iнформацiї гіперпосилання на tvoemisto.tv є обов'язковим. Відповідальність за достовірність фактів, цитат, власних імен та інших відомостей несуть автори публікацій, а рекламної інформації — рекламодавці. Думка редакцiї може не збiгатися з думкою авторiв.
© 2026 "Твоє місто"




