
17 July 2019, 15:28
17 July 2019, 15:28
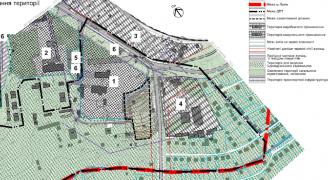
A new transport interchange is planned to be established and a concrete product manufacturing workshop built on Aviatsiina Street in Lviv. This is stated in the detailed territory plan for the area of Aviatsiina Street in Lviv.
Read also: In Lviv, the development of the territory of two factories in Pidzamche was permitted
The area of the detailed plan covers 12.5 hectares and is surrounded by Aviatsiina Street, community gardens, and the city limits. According to the master plan, this territory is designated as industrial, municipal-warehouse, and recreational zones.
Residential development is not planned for the area; however, they intend to build a workshop for concrete product manufacturing on a 0.54-hectare plot and establish a roundabout on Aviatsiina Street with sidewalks and bike lanes.



The radius of the central island of the interchange will be 10 m. In the future, it is also proposed to set up a parking lot on the street. For the sections of the district-level main street, four traffic lanes of 3 m each and two bike lanes of 1.85 m each are planned. Sidewalks will be 1.5-2.25 m wide. On local streets, there will be two lanes of 2.75 m with sidewalks and bike lanes of 1.5 m each.
In addition, comprehensive landscaping and greening are to be carried out within the detailed plan area.
Read also: A multifunctional quarter will appear near the airport in Lviv. Visualization
A public hearing on the detailed territory plan will take place on July 31 at the Zaliznychna District Administration building (22 Vyhovskoho St.). Start at 18:00.
Comments
No comments
Related News
Content
Categories
Additionally
Developed by:
Levprograming
In case of full or partial use of the information, a hyperlink to tvoemisto.tv is mandatory. Responsibility for the accuracy of facts, quotes, proper names and other information lies with the authors of the publications, and with advertisers for advertising information. The editorial opinion may not coincide with the opinion of the authors.
© 2026 "Tvoe Misto"




